 |

 |
 |
 |
 |
 |
 |  |
| 06-6304-0700 |
 |  |
お電話でもお気軽に ご連絡ください。 |
|
 |
 |
 |
 |
 |
|
 |  |  |
 |  |
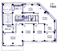
物件No : ten0002 大阪市東淀川区 店舗 家賃80万円
|
|  |
 |
1階店舗
|
|  |
|
 |
 |
|
物件番号 |  |
ten0002
|  |
敷 金 |  |
−
|
 |
|
所在地 |  |
大阪市東淀川区東中島1
| |
礼 金 | |
−
|
 |
|
交 通 |  |
地下鉄御堂筋線 西中島南方駅 徒歩5分 JR新大阪駅 徒歩8分
| |
保証金 | |
900万円
|
 |
|
契約年数 |  |
−
| |
解約引 | |
−
|
 |
|
構 造 |  |
SRC10階建
| |
賃 料 | |
800,000円
|
 |
|
築年数 |  |
| |
共益費 | |
394,240円
|
 |
|
タイプ |  |
店舗
| |
水道代 | |
実費
|
 |
|
面 積 |  |
140.8坪
| |
駐車場 | |
−
|
 |
|
使用部分 |  |
1階
| |
空 調 | |
個別空調
|
 |
|
設 備 |  |
|
 |
|
備 考 |  |
1階店舗
|
 |
 |
|
|