 |

 |
 |
 |
 |
 |
 |  |
| 06-6304-0700 |
 |  |
お電話でもお気軽に ご連絡ください。 |
|
 |
 |
 |
 |
 |
|
 |  |  |
 |  |
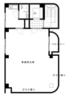
物件No : jim0001 東大阪市長堂 貸 事務所 家賃11万円
|
|  |
 |
大阪東大阪線に面する24時間対応。
|
|  |
|
 |
 |
|
物件番号 |  |
jim0001
|  |
敷 金 |  |
−
|
 |
|
所在地 |  |
東大阪市長堂2丁目16−18
| |
礼 金 | |
−
|
 |
|
交 通 |  |
近鉄奈良線 布施駅 徒歩10分
| |
保証金 | |
120万円
|
 |
|
契約年数 |  |
−
| |
解約引 | |
スライド式
|
 |
|
構 造 |  |
鉄骨造5階建
| |
賃 料 | |
110,000円
|
 |
|
築年数 |  |
平成7年8月
| |
管理費 | |
8,000円
|
 |
|
タイプ |  |
貸 事務所
| |
水道代 | |
なし
|
 |
|
面 積 |  |
65.00u
| |
駐車場 | |
なし
|
 |
|
使用部分 |  |
2階
| |
その他 | |
電気代実費
|
 |
|
設 備 |  |
−
|
 |
|
備 考 |  |
保証金解約時返還金 10年未満45万 10年以上75万 20年以上全額返金。
|
 |
 |
|
|