 |

 |
 |
 |
 |
 |
 |  |
| 06-6304-0700 |
 |  |
お電話でもお気軽に ご連絡ください。 |
|
 |
 |
 |
 |
 |
|
 |  |  |
 |  |
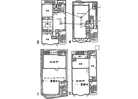
物件No : buil0001 大阪市淀川区 1棟売り 住宅以外の建物(全部) 8,000万円
|
|  |
 |
市街化区域。
|
|  |
|
 |
 |
|
物件番号 |  |
buil0001
|  |
価 格 |  |
8,000万円
|
 |
|
所在地 |  |
大阪市淀川区三津屋南1丁目14−5
| |
構 造 |  |
鉄骨造り 地上4階
|
 |
|
交 通 |  |
阪急電鉄神戸線 神崎川駅 徒歩8分
| |
築年数 | |
平成3年3月
|
 |
|
土地面積 |  |
176.12u(約53.3坪)
| |
駐車場 | |
|
 |
|
建物面積 |  |
420.68u
| |
| |
|
 |
|
間取り |  |
1F 119.2u 2F 119.85u 3F 115.51u 4F 66.12u
|
 |
|
設 備 |  |
−
|
 |
|
備 考 |  |
|
 |
 |
|
|